您現在所在位置:大田閥門 >> 襯氟閥門(襯里閥門)
設計與制造:GB12239
結構長度:GB12221、JB1688
法蘭連接尺寸:GB4216、JB78
G6B41F(無襯里)、G6B41Fs(襯氟塑料)氣動隔膜閥(常閉型)用于控制非腐蝕性或強腐蝕性介質,閥體內腔表面無襯里或覆有可供選擇的各種氟塑料,適用于不同工作溫度和流體管路。
適用溫度:≤85℃、≤100℃、≤120℃、≤150℃、(可按照襯里和隔膜材料)
壓力等級:0.6、1.0、1.6
襯里層:電火花檢測
實驗與檢驗按GB/T13927標準
公稱壓力:PN閥體:PN×1.5 密封:PN×1.1
材料: 閥體:鑄鐵、球墨鑄鐵、碳鋼、不銹鋼
閥蓋:鑄鐵、球墨鑄鐵、碳鋼、不銹鋼
襯里:無襯里、氟塑料
隔膜:氟塑料
閥瓣:鑄鐵、碳鋼
氣缸:球墨鑄鐵
活塞:碳鋼
閥桿:碳鋼
手輪:鑄鐵
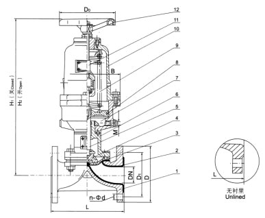
部件列表:1、閥體2、閥體襯里3、隔膜4、閥瓣5、下閥桿6、閥蓋7、氣缸8、活塞9、彈簧10、氣缸蓋11、上閥桿12、手輪

| DN | 公稱壓力 | 工作壓力 | L | D | D1 | n-Фd | f | H1 | H2 | D0 | B | 氣源 壓力 |
氣源接頭 | 耗氣量 | 重量 |
|---|---|---|---|---|---|---|---|---|---|---|---|---|---|---|---|
| 15 | 0.6 | 1.0 | 125 | 95 | 65 | 4-14 | 2 | ||||||||
| 20 | 139 | 105 | 75 | 4-14 | 2 | ||||||||||
| 25 | 145 | 115 | 85 | 4-14 | 2 | 296 | 310 | 120 | 94 | 0.4 | 10×1 | 2.395×102 | 8 | ||
| 32 | 160 | 145 | 100 | 418 | 2 | 398 | 416 | 140 | 120 | 0.4 | 12×1.25 | 6.082×102 | 15 | ||
| 40 | 180 | 150 | 110 | 4-18 | 3 | 406 | 426 | 140 | 120 | 0.4 | 12×1.25 | 6.082×102 | 17.5 | ||
| 50 | 210 | 165 | 125 | 4-18 | 3 | 464 | 489 | 160 | 185 | 0.4 | 12×1.25 | 1.235×103 | 26 | ||
| 65 | 0.6 | 250 | 185 | 145 | 4-18 | 3 | 160 | 0.5 | 32 | ||||||
| 80 | 300 | 200 | 160 | 4-18 | 3 | 645 | 685 | 200 | 245 | 0.5 | 16×1.5 | 3.725×103 | 56.5 | ||
| 100 | 350 | 220 | 180 | 8-18 | 3 | 710 | 760 | 240 | 330 | 0.5 | 16×1.5 | 9.458×103 | 94.5 | ||
| 125 | 400 | 250 | 210 | 8-18 | 3 | 832 | 900 | 320 | 380 | 0.5 | 20×1.5 | 1.109×104 | 170 | ||
| 150 | 460 | 285 | 240 | 8-22 | 3 | 933 | 1013 | 320 | 470 | 0.5 | 20×1.5 | 2.868×104 | 229 | ||
| 200 | 570 | 340 | 295 | 8-22 | 4 | 1275 | 1395 | 400 | 470 | 0.5 | 20×1.5 | 4.619×104 | 387 | ||
| 250 | 0.4 | 680 | 395 | 350 | 12-22 | 4 |
溫馨提示:
本文中所有文字、數據、圖片均只適用于參考。需要查看更多的G6B41F(無襯里)、G6B41Fs(襯氟塑料)氣動隔膜閥(常閉型)性能參數、結構尺寸參數、價格等詳情,或要求印刷樣本,請聯系我們。
主營產品:氣動調節閥 - 電動調節閥 - 自力式調節閥
版版權所有 © 上海大田閥門管道工程有限公司
地址:上海市浦東新區川宏路528號宏圖大樓5樓
